大阪市平野区瓜破西 障がい者グループホーム 大阪府大阪市平野区瓜破西2丁目|1億338万円のその他|投資物件や収益物件

大阪・兵庫・京都・沖縄の不動産投資・収益物件|株式会社R-JAPAN

その他

大阪市平野区瓜破西 障がい者グループホーム
お気に入り
価格 1億338万円
利回り 6.50% 満室時想定
年収/月収
672万円 / 56万円
所在地 大阪府大阪市平野区瓜破西2丁目
この地域周辺の物件を見る
築年月 2025年7月築(築0年)
交通
近鉄南大阪線 矢田 徒歩15分
建ぺい率 60 % 容積率 200 %
ここがおすすめ

■2025年築
■25年間の一括借上の為、長期安定収入


  • 現地外観写真 外観イメージ
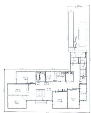
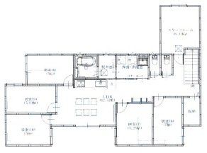
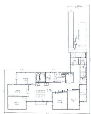
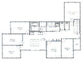
  • 間取り図 間取図
  • 現地外観写真 外観
  • 間取り図 間取図
お問い合わせ、資料請求、見学のお申し込みはこちらから

電話をかける(携帯・PHS可)
06-4802-5104
「ホームページを見た」とお伝え下さい。

お問い合わせ番号をお伝えください
B02318-002197

お問合せ

セールスポイント

特徴
  • 新着物件
セールスコメント



R-JAPANでは、不動産投資(収益物件)に留まらず、あらゆる不動産のトータルサポーターとして、さまざまなお客様のニーズに、ワンストップ業者としてお応えしております。

また、お客様への提案力には自信があります。
具体的には、同じ物件でもお客様個々のニーズやご希望、将来像は全く違いますので、自己資金の運用方法やご融資の組み方、ご購入やご売却のタイミング、ご家族構成から見る物件の運用期間といった広範囲に目を向けて、不動産のプロとしての目線や着目点をご提案できるのがR-JAPANの強みです。

お客様への「お役立ち」にお答えできる
R-JAPANの「10の不動産でできること」
1:不動産投資(収益物件)のご相談とご紹介・民泊の水面下物件情報
2:入居者管理やご退去・募集・賃貸付けのお手伝い
3:リフォームのご相談や施工
4:金融機関のご相談とご紹介
5:ご売却査定やご相談・市場調査
6:ご相続のご相談やセミナー開催
7:関西圏を中心とした不動産市況や未来予想の情報発信・不動産おもしろ情報の発信
8:顧客や取引業者からの水面下物件のご紹介
9:障がい者向けグループホーム物件のご相談やご提案
10:不動産のプロとしての物件診断やセカンドオピニオン

R-JAPANは大手不動産会社にない機動力とお客様個々のニーズに沿って個別面談をさせていただきながら、皆様の「お役立ち」にお応えして大阪の梅田という激戦区で頑張って来れたのは、ひとえにお客様からの応援とお一人様お一人様に寄り添ったご提案の結果だと思っております。
2017年には沖縄に店舗を開設し更なるお客様のニーズやセカンドハウスやリゾート物件のご紹介も可能になりました。
これからも大木より銘木を目指し、お客様の「お役立ち」にお応えさせていただこうと思っております。

ホームページでは会員様向けの情報や不動産雑学をR-JAPAN独自の切り込みでお気軽に見れる「おもしろ荘」など、皆様の「お役立ち」を満載しております。
ぜひR-JAPANのホームページにお立ち寄りください。

【R-JAPAN 収益物件】で検索

●------------------------------------●
  株式会社R-JAPAN
  MAIL:toushi@r-japan.co.jp
  TEL:06-4802-5104
  営業時間:10時〜19時
  定休日:毎週水曜日
●------------------------------------●

物件概要

階数 地上2階建 総戸数 10戸
構造 木造
間取り 1R -
土地面積 175.2m² (53坪) 建物面積 195.01u
現況 賃貸中 引渡し 相談
土地権利 所有権 都市計画 市街化区域
地目 宅地 地勢
用途地域 第二種中高層住居専用地域 接道状況 -
私道負担面積 - セットバック -
建築確認番号
駐車場 -
取引態様 仲介
情報更新日 2026年05月11日 次回更新日 2026年05月25日
情報更新日:2026年05月11日 次回更新予定日:2026年05月25日
※各種情報と差異がある場合は現況優先となります
お問い合わせ、資料請求、見学のお申し込みはこちらから

電話をかける(携帯・PHS可)
06-4802-5104
「ホームページを見た」とお伝え下さい。

お問い合わせ番号をお伝えください
B02318-002197

お問合せ
  • こちらの物件を見たお客様はこんな物件もチェックしています。
  • お気に入り物件

同じ価格帯の物件はこちら

広さの近い物件はこちら

電話でお問い合わせ
株式会社R-JAPAN

電話をかける

06-4802-5104

※「ホームページを見た」とお伝えください。
お問い合わせ番号をお伝えください
B02318-002197

お問い合わせ

お問い合わせ内容
お問合せ内容必須
【備考欄】
詳細な見学ご希望時間、ご質問、ご希望条件などがございましたらお聞かせ下さい。
(2000文字以内)
お客様情報
お名前必須
連絡先必須 メールアドレス

※ご記入いただいたメールアドレス宛てに、お問合せ内容の確認メールをお送りいたします。
※Yahoo!メールなどのフリーメールをご利用の場合、迷惑メールフォルダに入る場合があります。
 迷惑メールのフォルダ・設定等をご確認下さい。
電話番号
住所
FAX(任意)
ご年収必須
自己資金(諸経費含む)必須 万円
※ご入力いただいたお客さまの個人情報は、「個人情報のお取り扱いについて」に基づき適正に取り扱います。
必ずお読みになり、同意の上お問い合わせください。

お気軽にお問い合わせください

06-4802-5104
物件番号 B02318-002197
※「ホームページを見た」
とお伝え下さい。

お役立ち機能

このページを印刷する

お知らせINFORMATION

お知らせ一覧

更新情報UPDATE

不動産の基礎知識ブログ【おもしろ荘】
大阪R-JAPANがお届けする「相続サポートセンター」
全国ネットワーク「家族信託の相談窓口」
プロが大切なお家をお守り「空き家管理」
障がい者グループホーム「投資事業」
楽待
SUUMO
HOMES
リビンマッチ
不動産投資博士

株式会社R-JAPAN 本店

06-4802-5104
〒530-0015
大阪府大阪市北区中崎西4-3-32 ARCA梅田ビル3F
受付時間:10:00〜19:00
定休日:水曜日
  • HOUSEDoサンパーク通り浦添

    098-876-5454
    〒901-2133
    沖縄県浦添市城間4丁目6−2
    受付時間 / 10:00〜19:00
    定休日 / 水曜日
  • HOUSEDo豊見城

    098-856-5456
    〒901-0225
    沖縄県豊見城市豊崎1-1146
    受付時間 / 10:00〜19:00
    定休日 / 水曜日
  • HOUSEDo南風原

    098-940-6565
    〒901-1117
    沖縄県島尻郡南風原町津嘉山
    1345-2
    受付時間 / 10:00〜19:00
    定休日 / 水曜日
売却査定依頼